Issue No. 17
now available to pre-order
Issue No. 17
now available to pre-order
Homes
Print Publication
On The Local Market
Articles
Videos
The Local Marketplace
Profiles
Advertise
About
Stockists
Contact Us
Subscribe to our mailing list
Your Cart
Your cart is currently empty.
View issues archive
View cart
Check out
Homes
Architecture
Interiors
Gardens
View all
Design
Furniture
Homewares
Profiles
Materials
Fixtures & Fittings
Appliances & Technology
Motoring
View all
Commercial Projects
Multi-Residential
Retail
Wellness
Workplace
Public architecture
Education
View all
Lifestyle
Style & Luxury
Watches & Jewellery
Culture
Art & Sculpture
Travel
News
Events
View all
On The Market
Listings
Videos
Articles
Agents
Design Directory
Architects
Interior Designers
Landscape
Developers
Builders
Makers
Artists
Distributors
View All
The Local Marketplace
Featured
By brand
By room
By type
View all
Articles
View All
Residential
Commercial
Sustainability
Print Features
Print publication
View All
Magazine
Books
Subscribe
About
Videos
View All
Residential
Commercial
Sustainability
Print Features
Homes
Print Publication
On The Local Market
Articles
Videos
The Local Marketplace
Profiles
Advertise
About
Search for:
Browse Categories
Architecture & Interiors
Product Design
News and Events
Studios and Firms
Project Galleries
Print Publication
Videos
x
Architects
at home
&
Designers
at home
The Local Project’s
latest hardcover books
Pre-order now
CLOSE
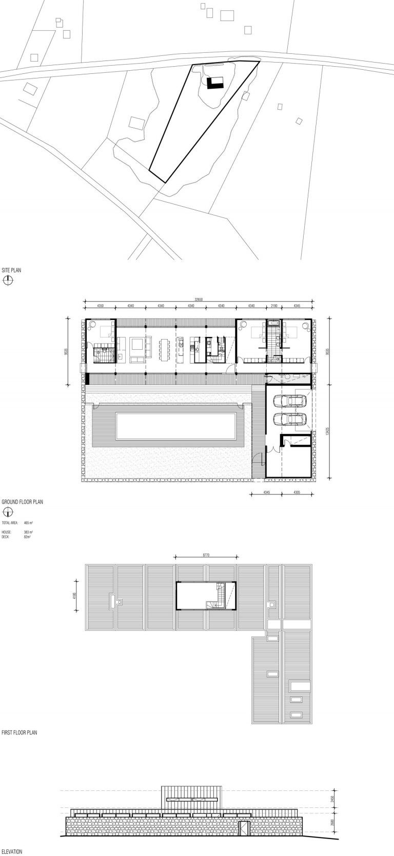
Project Berry
Modscape
Share