Published
22/07/2019
Words
Liz Barrett
Photography

For many who embark on a renovation project, the primary objective is to increase the living space, often at the expense of the outdoor areas. In contrast to this typical response, with the Green House Zen Architects’ aim was to expand the green space, engulfing the home with living foliage.

When Luke Rhodes of Zen Architects was commissioned to design the Green House project, he quickly realised that the client’s passion for nature was an opportunity to increase the ecological biodiversity in an urban area where there was very little. Luke describes, “wherever we could feasibly cut out building, we put a garden in its place, like a three-dimensional flowerpot that you can live in. Architecture and landscape that work as one, creating a sustainable home nestled into a peaceful and soothing oasis.”

Image 35@2x
He Quickly Realised That The Client’s Passion For Nature Was An Opportunity To Increase The Ecological Biodiversity In An U
Image 35@2x
Image 35@2x
Image 35@2x
In Contrast To This Typical Response, With The Green House Zen Architects’ Aim Was To Expand The Green Space
Image 35@2x
Image 35@2x
Plants creep throughout the home, filtering the air.
Image 35@2x
Often At The Expense Of The Outdoor Areas
Image 35@2x
Image 35@2x
The two-storey home is flooded with natural light.

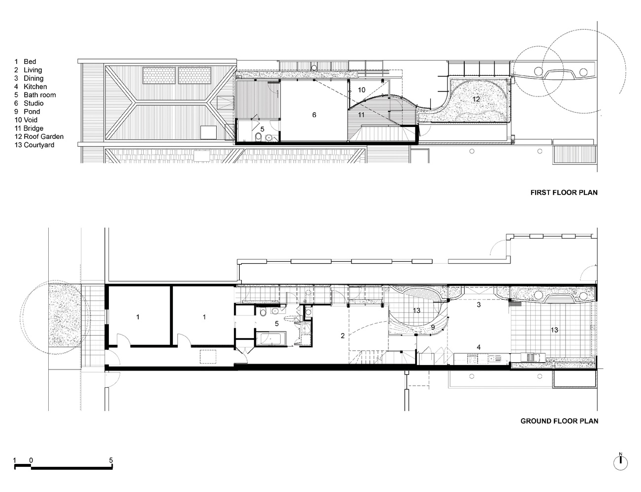
Situated on a narrow block in North Carlton, the original layout was impractical in many ways including in its absence of natural lighting, water and energy inefficiency. The brief was to open the home, which was achieved by offsetting the house from the boundary and creating two courtyards adjoining the dining room with north facing windows. Despite having to compromise on the design of the first floor to comply with heritage restrictions, the layout conceived allows the inhabitant to ‘follow the sun’ around the house and always find a sunny spot, both indoors and out.

“Wherever we could feasibly cut out building, we put a garden in its place.”

The design not only expands the floor area of the home but also incorporates passive solar design, minimising water and energy use. Water consumption is reduced through harvesting rainwater for use in the house. The gardens are watered with grey water from shower and laundry via automated sub-surface irrigation systems, which minimise evaporation.

Image 35@2x
A Sustainable Home Is Nestled Amongst The Landscape.
Image 35@2x
Image 35@2x
The curved roof creates a sweeping ceiling.
For Many Who Embark On A Renovation Project, The Primary Objective Is To Increase The Living Space
The first-floor studio has skyline views to the north and connects to the rooftop garden at the rear.

A two-storey north-facing void allows the sun to penetrate deep into the house. This heats the thermal mass of exposed concrete on the floor and ceiling, providing passive heating in winter. Luke explains, “this small house exudes soul. It was designed to give more than it takes.” In the summer, passive cooling is achieved via cross-ventilation through the stack effect of the two-storey void – drawing cool air over the ground floor courtyard garden and pond and up the void.

The layout conceived allows the inhabitant to ‘follow the sun’ around the house and always find a sunny spot, both indoors and out.

Stable internal temperatures are maintained through high-performance wall insulation and the roof garden that provides an insulation of earth. Deciduous planting on the site provides shade during the summer and the interior is interspersed with additional plants to improve the indoor air quality.

Engulfing The Home With Living Foliage.
The rooftop garden is a secluded oasis.
Image 35@2x
When Luke Rhodes Of Zen Architects Was Commissioned To Design The Green House Project
Image 35@2x
Image 35@2x
The open plan living areas flow on to the rear courtyard.

The rooftop garden is perched above the surrounding rooftops and helps shade the ground floor courtyard from the western sun. Each element has been designed to have a flow-on effect with the next. “The home connects you to nature, you feel you are part of a bigger picture,” Luke reflects. “The home transforms with the light and the seasons – just like nature, it is forever changing. It makes you feel alive.”

An urban sanctuary set amongst busy inner Melbourne, the home is a living, breathing, sustainable space that is a pleasure to inhabit.

Green House By Zen Architecture Tlp 1
Green House By Zen Architecture Tlp 2
Green House By Zen Architecture Tlp 3