Published
11/06/2019
Words
Bronwyn Marhsall
Photography

Inspired by traditional Japanese townhouses in Kyoto, Machiya House by Downie North is a fusion of new and old, where curated screens and openings connect interior with exterior, set amongst the heritage-rich backdrop of Balmain, Sydney.

A growing family expecting twins called for an extension to the existing heritage listed cottage. Downie North worked together with the owner-builder and graphic designer client to devise the appropriate architectural response within its important context. Looking to Japan, and specifically Kyoto, as a reference for a layered and condensed urban response, the Machiya House was conceived. Based on principles of efficiency and layering, elements that connect and encourage the external inward while creating a sense of openness were adopted.

Image 35@2x
While Appropriately Addressing Context Within Its Heritage Rich Surroundings.
Image 35@2x
Image 35@2x
Image 35@2x
Council Requirements Necessitated A Commitment To Retain The Existing Two Front Bedrooms And The Continuation Of The Gabled Roofline, Leaving Roo
Image 35@2x
Image 35@2x
Based on principles of efficiency and layering, elements that connect and encourage the external inward while creating a sense of openness were adopted.
We Explore How Carefully Curated Openings And Screens Seamlessly Connect The Interior To The Streetscape
At The Core Of The New Home Was A Sense Of Connection And An Opening Of Its Previous Bones
The site is located on the corner of a street and a laneway, as one part of a pair of heritage listed semi-detached cottages.
Image 35@2x
Downie North Worked Together With The Owner Builder And Graphic Designer Client To Devise The Appropriate Architectural Response Within Its Impor
Image 35@2x
Image 35@2x

Completed in April 2019, the site is located on the corner of a street and a laneway, as one of a pair of heritage listed semi-detached cottages. Immersed within the Iron Cove Heritage Conservation area, the houses were a reflection of the planning of the time, expressing a distinct disconnection between the outdoor and indoor spaces. In first response to this, and as a reflection of how the residential typology has shifted since the original build, all emphasis was placed on breaking this lack of connection and flow.

Set In Heritage Rich Balmain, Sydney, Downie North’s Machiya House Respectfully Takes Lessons From Its Japanese Influences, Instilling Privacy, C
All emphasis was placed on breaking the original building’s lack of connection and flow.
Image 35@2x
Inspired By Traditional Japanese Townhouses In Kyoto
Image 35@2x
Image 35@2x
At the core of the new home were a sense of connection and an opening of its previous bones.
Image 35@2x
Machiya House Sees A Japanese Influence The Fusion Of Old And New Within An Existing Townhouse In Balmain, Sydney
Image 35@2x
Image 35@2x

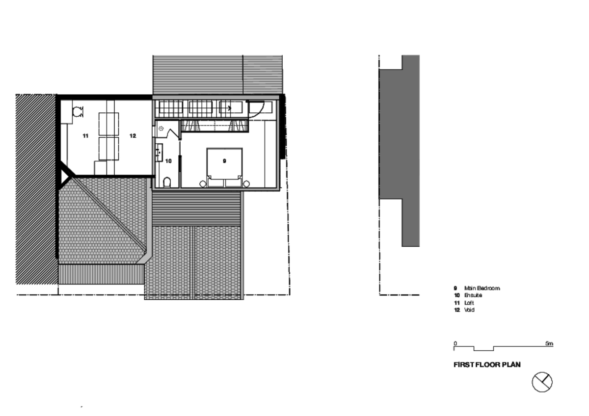
Council requirements necessitated a commitment to retain the existing two front bedrooms and the continuation of the gabled roofline, leaving room for interpretation in the revised planning. At the core of the new home was a sense of connection and an opening of its previous bones. Tasked with balancing the heritage requirements with a modern take on inner-city dwelling, Downie North created a central hearth in the form of the kitchen and living areas from which all other additional bedrooms, dining and ancillary wet areas could be determined.

Cleverly sleeved under the original conserved gable-roofline, a mezzanine loft was also added to minimise the expansion of the existing building area. Set within an L-shape footprint, Downie North’s approach was to reference the Japanese flow of their townhouses, and through mechanisms such as screens and cleverly-positioned apertures, the opening of each zone was then further amplified through borrowing from the other space in terms of light, extended space and outlook. Downie North refers to this lateral approach as the ‘diagonal vista’, where connection is not strictly orthogonal.

A Growing Family Expecting Twins Called For An Extension To The Existing Heritage Listed Cottage
Where Curated Screens And Openings Connect Interior With Exterior
Council requirements necessitated a commitment to retain the existing two front bedrooms and the continuation of the gabled roofline, leaving room for interpretation in the revised planning.
Looking To Japan, And Specifically Kyoto, As A Reference For A Layered And Condensed Urban Response
Machiya House respectfully takes lessons from its Japanese influences, instilling privacy, connection and a new access to light.
Set Amongst The Heritage Rich Backdrop Of Balmain, Sydney.

Through the conservation of the existing brickwork, heritage elements and referencing scale and proportion, as well as through Downie North’s careful collaboration with the owner, builder and contractors, opening and connection of the interior with the exterior was achieved, details were retained and expressed, and a hybrid of approaches was implemented. Referencing the masters in dense inner-urban living, Machiya House respectfully takes lessons from its Japanese influences, instilling privacy, connection and a new access to light.

Based On Principles Of Efficiency And Layering, Elements That Connect And Encourage The External Inward While Creating A Sense Of Openness Were A
The Site Is Located On The Corner Of A Street And A Laneway, As One Part Of A Pair Of Heritage Listed Semi Detached Cottages.
Expressing A Distinct Disconnection Between The Outdoor And Indoor Spaces.
Immersed Within The Iron Cove Heritage Conservation Area, The Houses Were A Reflection Of The Planning Of The Time