Published
10/09/2018
Words
Rose Onans
Photography

When Nicholas Russo and Brad Wray, founding directors of Branch Studio Architects, were designing their new office space nestled below the Nightingale 1 building in Brunswick, Melbourne, it provided the chance to deeply consider every aspect of how they work. We discuss with Brad how the office is a culmination of their experience running the studio, their attitude to work-life balance, and above all, their approach to design.

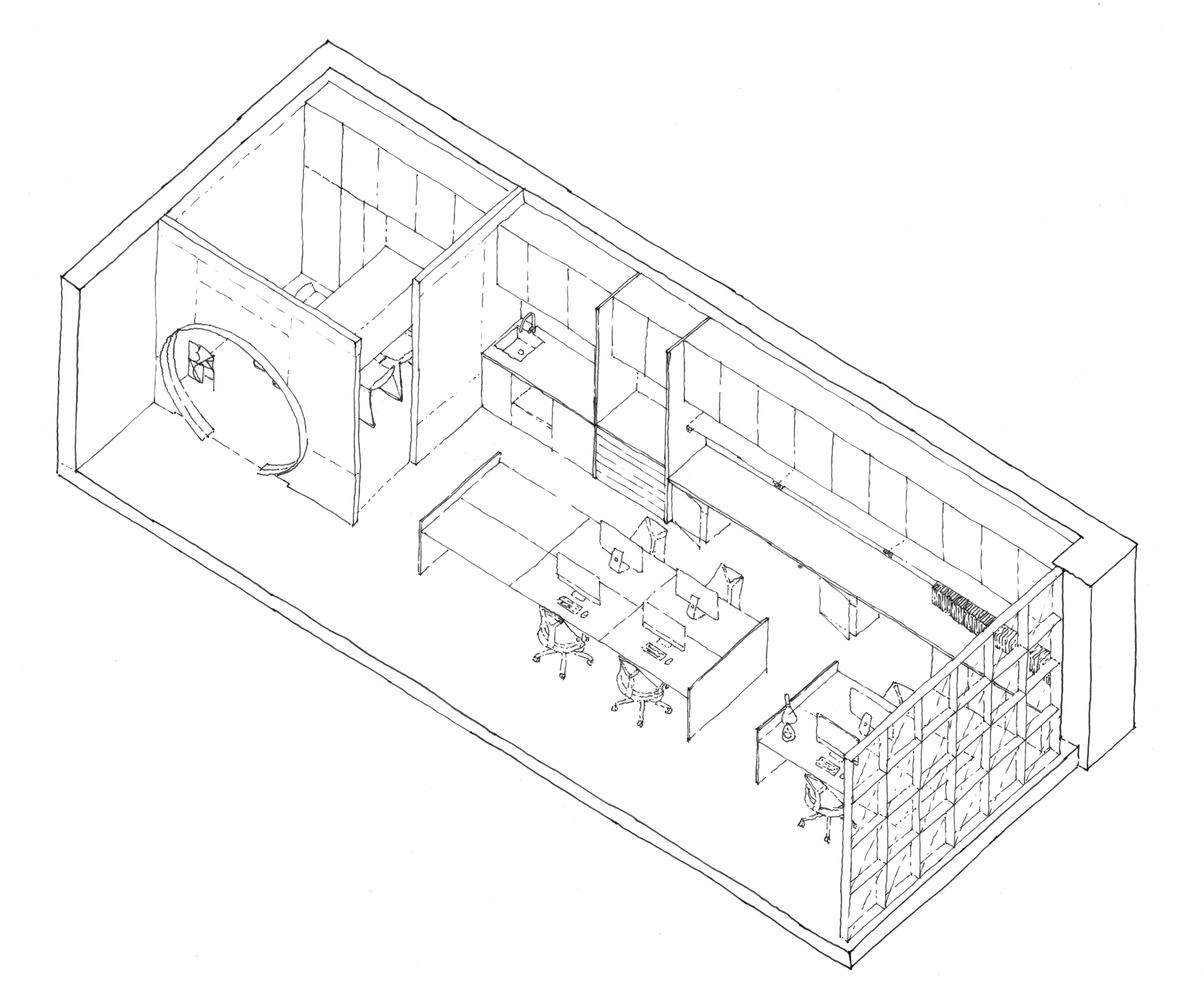
With its strong materiality, distinctive curved entry and moody atmosphere, the office is a true reflection of its inhabitants’ architectural values. While current trends focus on emphasising light and space, the office is a compact 45m2 that finds great joy in rich, dark materials and soft, subdued lighting. ‘Light is a wonderful thing’, concedes Brad, ‘but we wanted to create a mood. The timber and black warm the space up and create an earthiness. When clients walk in, we can talk about what that is and they can feel it, it helps them to understand what we mean.’

Branch Studio Architects Residential Australian Designers And Architects Brunswick,melbourne Image 5
Branch Studio Architects office is located under the Nightingale 1 building in Brunswick, Melbourne.

From their very beginning as a practice, Branch Studio Architects have eschewed trends, instead harking back to inspiration and meaning they find in architecture of the past. Brad’s experience studying in Switzerland and Nicholas’ Italian heritage connects them to an international approach that simultaneously respects the importance of a regional architectural vernacular. Brad expresses that ‘we understand the significance of an Australian regionalism, but at the same time there is a strong connection that ties us to the tradition of international architecture’.

Branch Studio Architects Residential Design And Architecture Brunswick,melbourne Image 2
The office space was designed by Branch Studio Architects directors Nicholas Russo and Brad Wray.
Branch Studio Architects Residential Australian Designers And Architects Brunswick,melbourne Image 6

The circular entry to the office meeting room, which creates a focal point for the space, is ‘specifically derived from the chapel within Carlo Scarpa’s Brion Tomb of 1969-1977 in San Vito d`Altivole near Treviso, Italy’, explains Brad. ‘The meeting room is a window into the rich history of architecture, which we regularly find ourselves immersing in and as a result our ideas through discussions with our clients and collaborators.’

Branch Studio Architects Local Architects And Designers Brunswick,melbourne Image 16
The wall panels were built by Brad's father.
Branch Studio Architects Local Architects And Designers Brunswick,melbourne Image 13

Both Brad and Nicholas are also furniture makers, which sees them shifting and translating between small and large scale, something they recently discussed in a talk for the Frank Lloyd Wright School of Architecture. This is evident in the office design’s considered details – Brad explains that ‘my dad built the wall panels and the curved entry, and Nick’s cousin did the joinery, which is a true example of old school craftsmanship’.

Branch Studio Architects Local Commercial Australian Architecture Design Brunswick,melbourne Image 12
The office features many of the design trademarks of the Nightingale movement.

The new office is also the product of their experience founding and establishing the practice. When Branch Studio Architects was founded in 2012, the studio was located in an orchard in Officer, where Nicholas’ father has a sculpture workshop. While the setting was idyllic, surrounded by fruit trees with all manner of birds and wildlife on the doorstep, it was also an hour’s commute for both architects. After the orchard studio, Branch Studio Architects occupied several temporary spaces in the city and Collingwood, but had no true home for their growing practice.

Branch Studio Architects Residential Australian Designers And Architects Brunswick,melbourne Image 8
The design finds great joy in rich, dark materials and soft, subdued lighting.
Branch Studio Architects Residential Design And Architecture Brunswick,melbourne Image 4

Over those years, Brad and Nicholas established both the practice and their professional partnership, with Brad organically gravitating toward the design side of the practice and Nicholas focusing on the hands-on project management during the building phase. When the time came to design their permanent base, it was an opportunity to reflect on their experience and design not only the space, but their whole approach to work and design. ‘We looked at the last couple of years and looked at what we each want out of our work’, says Brad.

Image 35@2x
Branch Studio Architects Local Architects And Designers Brunswick,melbourne Image 15
Image 35@2x
Image 35@2x
Nicholas and Brad wanted to design an office that paid respect to the importance of regional architectural vernacular.
Branch Studio Architects Local Architects And Designers Brunswick,melbourne Image 14

The studio is their formal office, but for Brad, who lives above with his family in Nightingale 1, ‘in funny way it’s also an extension of home’. Nicholas, meanwhile, works several days a week from Kilcunda, where he lives. Since the hectic early days of starting Branch Studio Architects, two integral staff members and a more established practice has allowed them to step back and emphasise work-life balance. With the practice’s maturity, they are also able to be more selective about their projects, taking on work that aligns with their architectural values.

Image 35@2x
Branch Studio Feature Interview The Local Project Architecture & Designbranch Studio Office 0086 Min
Image 35@2x
Image 35@2x
Image 35@2x
Branch Studio Architects Residential Australian Designers And Architects Brunswick,melbourne Image 7
Image 35@2x
Image 35@2x

This sees them now with a broad portfolio of projects, from residential, to school buildings and some commercial work, encompassing budgets at each end of the spectrum. Branch Studio Architects see each as part of the broader discipline of architecture, with the same driving belief that ‘architecture should be for everyone’. Brad says that, particularly of their work in the education sector, ‘the most important thing is being able to bring architecture to people who wouldn’t necessarily have the means to access it. It’s been incredibly rewarding to see the transformational potential of architecture at Caroline Chisolm College – broadly considered a school of lower socio-economic background, with the new building enrollments are up and there’s a real sense of pride and optimism’.

Branch Studio Architects Contempoary Architecture And Design Brunswick,melbourne Image 17
The circular entry to the office meeting room, creates a focal point for the office space.
Branch Studio Architects Local Commercial Australian Architecture Design Brunswick,melbourne Image 10

This belief in the power of architecture is reflected in the office’s approach to quality design over quantity of space. Making striking use of its modest space in Nightingale 1, the office’s small size serves to almost concentrate the level of consideration and meaning behind the design. It is certainly a fitting home for Branch Studio Architects – a culmination of past experience creating the space in which they design for the future.

Branch Studio Architects Local Commercial Australian Architecture Design Brunswick,melbourne Image 9